Maison à vendre Versailles

Description du bien
PROJET SUR MESURE – SELON VOS ENVIES – SELON VOTRE BUDGET
Située au cœur du charmant quartier de Porchefontaine au sud-est de Versailles, quartier qui séduit par son ambiance résidentielle et verdoyante, à quelques minutes seulement du centre-ville, de la gare RER C, de la forêt et du parc des Nouettes.
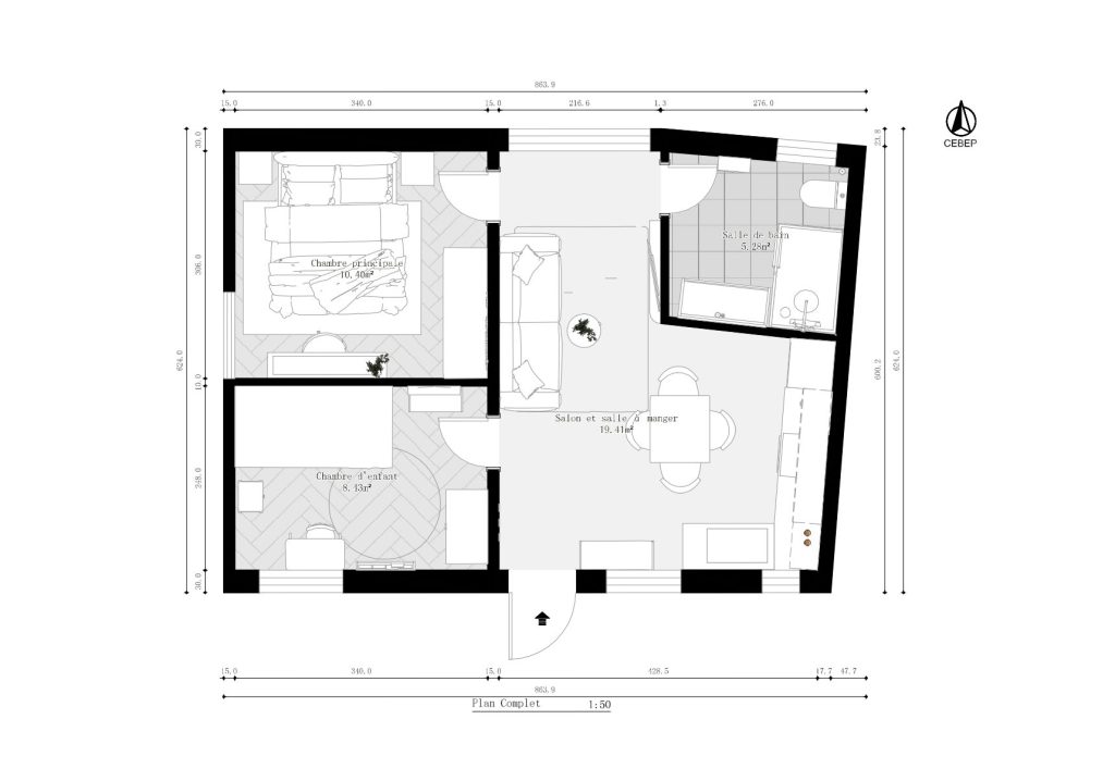
Cession de l’ensemble du dossier déjà constitué, validé et prévu avec chacun des différents intervenants (urbanisme, artisans, maître d’ouvrage, architecte d’intérieur ect) Profitez d’un gain de temps non négligeable pour la satisfaction d’une rénovation personnelle déjà ficelée ! Prix de vente : 325 000 €. Devis de travaux de rénovation par entreprise TCE : 84 000 TTC; Projet global et clés en mains : 409 000 €. Charmante maison rénovée avec le concours d’une décoratrice d’intérieure et d’une entreprise d’assistance à maîtrise d’ouvrage, vous offre un cadre de vie lumineux et fonctionnel. Avec ses 43 m² parfaitement optimisés, elle dispose de deux chambres confortables avec placard, d’une pièce à vivre avec espace cuisine aménagée et équipée et salon, un jardin privatif intimiste et soigneusement aménagé, clôturé et exposé Sud, idéal pour les repas en plein air. Une place de stationnement sécurisée. Isolation thermique extérieure entièrement refaite, associée à une isolation de toiture complète, pour un confort optimal en toute saison. Système de chauffage au gaz de ville avec chaudière à condensation récente, offrant efficacité et maîtrise des consommations. Refonte totale de la plomberie et de l’électricité, aux normes actuelles. Menuiseries neuves pour un meilleur confort acoustique et thermique. Rénovation complète des sols et des peintures, avec des matériaux modernes et harmonieux. Cuisine, salle de bains et WC entièrement neufs, pensés pour allier fonctionnalité et esthétique. Chaque détail a été étudié pour offrir un logement fiable, confortable et prêt à vivre, sans compromis sur la qualité.
La gare RER C de Porchefontaine permet de rejoindre Paris en quelques minutes. Plusieurs lignes de bus et accès rapide aux grands axes (N12, D10) facilitent tous vos déplacements vers Vélizy, Saint-Cyr ou la capitale.
Le quartier bénéficie d’un marché bi-hebdomadaire, commerces de proximité (boulangeries, boucherie, supérette, pharmacie), restaurants et cafés. Tout est accessible à pied pour simplifier votre quotidien.
Écoles maternelles et primaires à proximité (Saint-Exupéry, Jules-Ferry, Les Petits Bois), ainsi que les collèges Pierre de Nolhac et lycées Hoche et Marie-Curie, garantissant un parcours scolaire complet et d’excellence.
Stade, tennis, centre équestre, gymnase, dojo et terrains multisports pour une vie active et dynamique.
La Maison de quartier propose musique, théâtre, danse, ateliers créatifs et événements toute l’année.
Professionnels de santé à proximité immédiate et accès rapide au centre hospitalier André Mignot.
Honoraires à la charge du vendeur. Classe énergie D, Classe climat D Montant estimé des dépenses annuelles d’énergie pour un usage standard : entre 810.00 € et 1130.00 € sur les années 2021, 2022 et 2023 (abonnements compris). Les informations sur les risques auxquels ce bien est exposé sont disponibles sur le site Géorisques : georisques.gouv.fr.
Votre conseiller Domini : Yola TREBOIT
Agent commercial (Entreprise individuelle)
Détails du bien
Equipements
- terasse
- 1 stationnement extérieur
Localisation du bien
Diagnostic de performance énergétique
Diagnostic de performance énergétique
Comment pouvons nous vous aider ?
Quelques biens qui pourraient vous intéresser
Appartement à vendre Montceau-les-Mines
Montceau-les-Mines



























